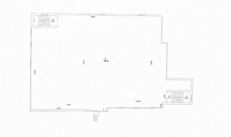
Аренда производственных помещений в Канавинском районе
| Стоимость объекта: | 238 000 руб. |
| Стоимость кв.м.: | 350 руб. |
| Общая площадь: | 680.0 кв.м. |
| Этаж: | 3 этаж |
Описание
Похожие объекты
Аренда производственных помещений в Канавинском районе
Вторчермета ул, д.6. "Аренда склада холодного, 935м2, Канавинский район, от собственника. Отличная транспортная развязка, близость к федеральной трассе М7-400 метров. Подъезд любого грузового и легкового транспорта. Охраняемая тнрритория. Материал стен кирпич и металл.Четверо ворот 4х4.5 метров. Высота потолков 9 метров. Полы ровный бетон, состояние покрытие идеальное. Мощности по электричеству достаточные. Все коммуникации. Подсобные помещения. Возможность аренды офисных помещений. На территории комплекса есть столовая. Открытые площадки для стоянки служебного и личного автотранспорта. Неплательщик НДС. Без комиссии.", N107621
Сутырин Михаил т. +7 (906)-365-29-99
Аренда производственных помещений в Канавинском районе
Московское ш.320. "Сдам отапливаемое производственное помещение 570 м2. Высота -9м. Полы- бетонные, беспылевые. Двое ворот, одни под фуру, вторые под Газель. Кран-балка - 3,2т. Есть помещение под офис, раздевалку для персонала. Свой санузел. Охраняемая территория производственно-складского комплекса. Территория заасфальтирована. Ставка - 850 рубм2 с НДС, + коммуналка.", N107075
Олег Эдуардович т. +7(920)-015-30-34
Посмотреть все похожие объекты
<<<Вернуться на главную страницу



- 0


















