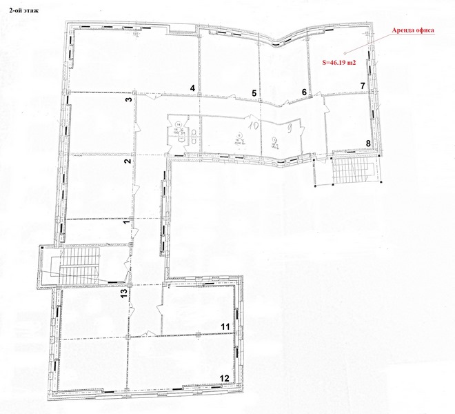
Аренда офиса в Сормовском районе
| Стоимость объекта: | 39 270 руб. |
| Стоимость кв.м.: | 850 руб. |
| Общая площадь: | 46.2 кв.м. |
| Этаж: | 2 этаж |
Описание
Похожие объекты
Аренда офиса в Сормовском районе
ул. Комминтерна д. 139. "Сдаю в аренду офис 48 м2 на 1 этаже жилого дома с административными помещениями. 2 кабинета с кондиционерами и небольшая комната под архив, кухню или серверную. Вход на несколько арендаторов. Режим работы не ограничен. Охрана - сдается на пульт. Выделено два рекламных места. Высокая проходимость. Парковка. Коммунальные входят в стоимость. Дополнительно оплачиваются средства связи, эл/эн. и внутренняя уборка. Договор с ИП, УСН.", N107579
Биткина Ирина т. +7(915)-959-93-94
Аренда офиса в Сормовском районе
Союзный пр-кт., д.45. "Предлагается офис общей площадью 40,77 кв.м. в Бизнес Центре. Сормовский район. Союзный проспект. Офис расположен на 3-ем этаже. Натяжной потолок, на полу линолеум. Хороший ремонт. Офис разделен перегородками на три кабинета. Есть подвод воды. Возможно использовать как салон красоты. Сан узел на этаже. Два провайдера интернет (Дом.ру и Ростелеком). Парковка для авто. Остановка общественного транспорта в шаговой доступности. Сдается от ИП. Ставка аренды без НДС. Дополнительно оплачивается эл.энергия по счетчику, уборка, интернет.", N105362
Бунаков Алексей т. +7 (915)-959-93-80
Аренда офиса в Сормовском районе
Союзный пр-кт., д.45. "Аренда офиса в Нижнем Новгороде, Сормовский район Предлагается в аренду современный офис площадью 44,31 кв.м. в Бизнес-центре на Союзном проспекте. Характеристики: Расположение: 4-й этаж. Отделка: подвесной потолок, линолеум на полу, качественный ремонт. Особенности: Большие окна, обеспечивающие естественное освещение. Удобства: Два санузла на этаже. Коммуникации: Интернет-провайдеры: Ростелеком и Дом.ру. Инфраструктура: Парковка для автомобилей, остановка общественного транспорта в шаговой доступности. Режим работы БЦ: с 7:00 до 23:00. Условия аренды: Сдается от ИП. Ставка аренды указана без НДС. Дополнительно оплачиваются: электроэнергия (по счетчику), уборка (2000 руб./мес.), интернет.", N107155
Бунаков Алексей т. +7 (915)-959-93-80
Посмотреть все похожие объекты
<<<Вернуться на главную страницу



- 0





















