Аренда офиса в Советском районе
6 000 000 рублей
| Стоимость объекта: | 6 000 000 руб. |
| Стоимость кв.м.: | 1500 руб. |
| Общая площадь: | 4000.0 кв.м. |
| Этаж: | 1 этаж |
Описание
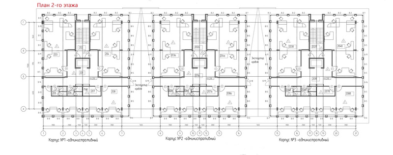
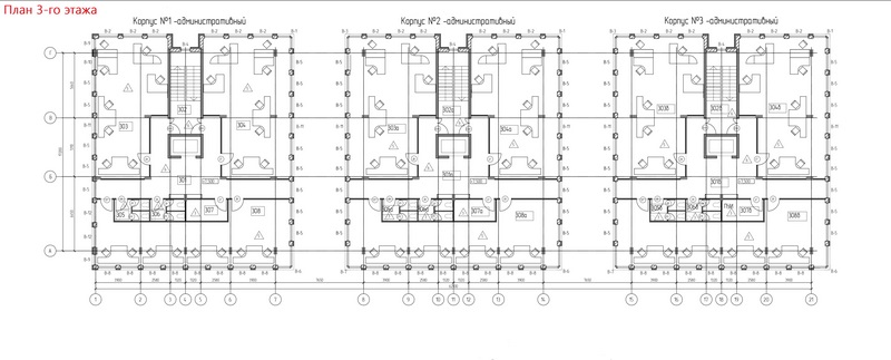
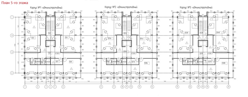
"Предлагаем к рассмотрению объект - административное здание. Здание состоит из 3-х частей, объединенных общим первым этажом. Общая площадь под аренду 4000 кв.м. офисы 2-5 этажи. Возможно увеличение за счет площадей на первом этаже.
Данное здание расположено в Советском районе города Нижнего Новгорода - на границе исторического центра "Старый Нижний", рядом с одним из основных транспортных узлов города - площадью Лядова. В непосредственной близости от него находится Нижегородский Телецентр и крупнейший в Нижнем Новгороде ТРЦ "Небо". В шаговой доступности расположены остановки всех видов общественного транспорта, в том числе станция метро Горьковская. Перед зданием места для автомобильной парковки.
Предлагаемое к сдаче в аренду здание представляет собой современный архитектурный объект с панорамным остеклением, высокими потолками и максимально возможной универсальностью внутренней планировки, обладающее при этом рядом особенностей:
1)Фасадное остекление выполнено с использованием мультифункционального стеклопакета, позволяющего не только
реализовать концептуальный внешний вид сооружения, но и защищает от ультрафиолетовых лучей, не препятствует проникновению естественного света, экономит электроэнергию и потребление тепла, визуально увеличивает внутреннее пространство.
2) В здании смонтирована система отопления "направленного тепла" (конвекторный периметр), благодаря чему реализована максимально
эффективная конвекция потоков тепла, обеспечивающая здоровое и равномерное распределение тепла в помещении.
Разумеется, в предлагаемом здании имеются все необходимые технически-эксплуатационные элементы, отвечающие самым современным требованиям: центральное кондиционирование; приточно-вытяжная вентиляция с утилизацией тепла и центральным охлаждением, возможностью увлажнения воздуха; бесшумные лифты фирмы KONE.
3) На прилегающем земельном участке имеется возможность размещения до 30 автомобилей.
4) В настоящий момент энергообеспечение здания составляет 300 кВт. Так же возможно обеспечение здания автономным резервным питанием с использованием генератора.
5) Здание имеет эксплуатируемую кровлю на уровне 2 этажа, которая может быть использована Вами для создания комфортной рабочей и рекреационной среды.
Предлагаем Вам рассмотреть возможность заключения долгосрочного (от 10 лет) договора аренды нежилых помещений,
Предполагаемая ставка аренды - 1500 рублей за кв.м. + коммунальные платежи + эксплуатационные расходы."
Бунаков Алексей т. +7 (915)-959-93-80
+7 (915)-959-93-80



- 0












































