Аренда офиса в Канавинском районе
| Стоимость объекта: | 840 000 руб. |
| Стоимость кв.м.: | 1400 руб. |
| Общая площадь: | 600.0 кв.м. |
| Этаж: | 5 этаж |
Описание
Похожие объекты
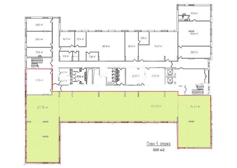
Аренда офиса в Канавинском районе
Карла Маркса ул, д. 44б. "Предлагаются в аренду офисные помещения в новом Бизнес Центре класса В. Расположение: Канавинский район, рядом с Мещерским озером. В шаговой доступости: станция метро Стрелка (12 минут), остановки общественного транспорта, ТРЦ Седьмое небо(фитнес, общественное питание). На первом этаже расположен продуктовый магазин и магазин электроники. На втором этаже парковка на 80 машино-мест. Третий этаж Конгресс Центр. Офисные помещения располагаются на 4-ом этаже. Офисный блок на 400 кв.м. Помещения с отделкой: напольное покрытие ПВХ плитка, окрашены стены и потолок, разводка электрики (розетки, освещение), разводка вентиляции, кондициониирования. Внутренняя инфрастуктура: уютное лобби, ресторан общественного питания, 4 скоростных лифта и один VIP лифт. Инженерные коммуникации: 2-я категория электроснабжения, центральная система вентиляции, центральная система кондиционирования, 2 провайдера телекоммуникационных услуг (Ростелеком, Дом-Ру Бизнес), круглосуточная охрана, система видеонаблюдения, система автоматического пожаротушения.", N107136
Сутырин Михаил т. +7 (906)-365-29-99
Аренда офиса в Канавинском районе
Революции пл, д.9. "Аренда офиса 450 кв.м. ТЦ Республика- 6 этаж. Блок кабинетов. Два лифта на этаж. Хороший офисный ремонт.Система кондиционирования и вентиляции.Светлое помещение - панорамные окна. Высокие потолки Возможен доступ 24/7. Отличное местораположение. Удобная транспортная развязка: станция метро Московская, автобусные остановки, пригородные поезда. Стоимость 850 р/м2 + счетчики. Рядом: ж/д вокзал, остановки общественного транспорта, метро Московская, ул. Литвинова, ул. Чкалова, ул Советская, Московское шоссе, пл. Революции, метромост.", N107313
Сутырин Михаил т. +7 (906)-365-29-99
Аренда офиса в Канавинском районе
Карла Маркса ул., д.44Б. "Предлагаются в аренду офисные помещения в новом Бизнес Центре класса В. Расположение Канавинский район, рядом с Мещерским озером. В шаговой доступости: станция метро Стрелка (12 минут), остановки общественного транспорта, ТРЦ Седьмое небо(фитнес, общественное питание). На первом этаже ресепшен, торговые площади, возможно склады, услуги для автомобилей. На втором этаже парковка на 80 машино-мест. Третий этаж Конгресс Центр. Офисные помещения располагаются на 8-ом этаже. Общая площадь 600 кв.м. Отдельный офисный блок. Ремонт в помещении обсуждается. Помещения с отделкой: напольное покрытие ПВХ плитка, окрашены стены и потолок, разводка электрики (розетки, освещение), разводка вентиляции, ввод кондициониирования. Внутренняя инфрастуктура: уютное лобби, ресторан общественного питания, гостевая парковка на 42 автомобиля, 4 скоростных лифта и один VIP лифт. Инженерные коммуникации: 2-я категория электроснабжения, центральная система вентиляции, центральная система кондиционирования, 2 провайдера телекоммуникационных услуг (Ростелеком, Дом-Ру Бизнес), круглосуточная охрана, система видеонаблюдения, система автоматического пожаротушения. Сдается от ИП. Дополнительно оплачиваются эксплуатационные расходы сто рублей за кв.м. Ставка аренды с НДС.", N104163
Бунаков Алексей т. +7 (915)-959-93-80
Посмотреть все похожие объекты
<<<Вернуться на главную страницу



- 0





















