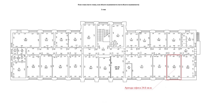
Аренда офиса в Ленинском районе
| Стоимость объекта: | 31 980 руб. |
| Стоимость кв.м.: | 1300 руб. |
| Общая площадь: | 24.6 кв.м. |
| Этаж: | 2 этаж |
Описание
Похожие объекты
Аренда офиса в Ленинском районе
Июльских Дней ул., д.1. "Аренда офиса. Нижний Новгород. Ленинский район. Улица Июльских дней. Офис общей площадью 30.9 кв.м. расположен на 2-ом этаже административного здания. По планировке офис одним кабинетом. В офисе хороший новый ремонт. Пол линолеум, подвесной потолок, светодиодный светильники. Два провайдера интернет (Ростелеком и Дом.ру). На этаже коридорная система. Санузел. рядом с офисом. В офис есть вывод воды и канализации. Сдается от юр.лица. Ставка аренды без НДС. Дополнительно оплачивается эл.энергия и вода по приборам учета. На первом этаже расположен продуктовый магазин. Шаговая доступность до остановки общественного транспорта улица Июльских Дней. До станции метро Чкаловская 600 метров.", N106753
Бунаков Алексей т. +7 (915)-959-93-80
Аренда офиса в Ленинском районе
Композиторская ул., д.22. "Аренда офиса. Нижний Новгород. Ленинский район. Улица Композиторская. Общая площадь 27,7 кв.м. Офис состоит из кабинета 23.4 кв.м., подсобного помещения 4.3 кв.м и небольшого холла. Есть подвод воды. Круглосуточный доступ. Охрана на входе. Интернет. Сдается от юр.лица без НДС. В здании есть столовая.", N107259
Бунаков Алексей т. +7 (915)-959-93-80
Посмотреть все похожие объекты
<<<Вернуться на главную страницу



- 0
















