Мы оказываем профессиональные услуги 22 лет 2 месяца и 6 дней

Предложить свою цену за объект


Уважаемый покупатель, если данное предложение Вас заинтересовало, но цена на объект не соответствует Вашим ожиданиям. У Вас есть возможность предложить свою стоимость. После того как вы заполните запрос и предложите свою стоимость, наш специалист свяжется с собственником объекта и озвучит Ваше предложение. В случае если собственник готов рассмотреть Ваше предложение, специалист свяжется с Вами.


Контактная информация
 
Имя: *
 
Телефон: *
 
Адрес электронной почты: *
 
Ваша цена (в рублях): *
 
Почему такая цена:
 
 

Примечание:
* Обязательные поля.

X

Продажа помещения в Нижегородском районе

43 499 988 рублей
Нижегородский р-н. Сенная пл., д.6/49
N 107255
Описание фото
Стоимость объекта: 43 499 988 руб.
Стоимость кв.м.: 172619 руб.
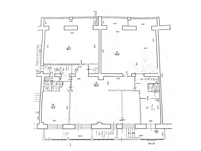
Общая площадь: 252.0 кв.м.
Этаж: 2 этаж
добавить в подборку печать объекта
услуги агентства оплачивает собственник

Описание

"Помещение. Нижний Новгород. Нижегородский район. Площадь Сенная. Помещение распложено в жилом доме на 2-ом этаже. Вход со двора как на первый этаж. Общая площадь 252 кв.м. По планировке помещение состоит из двух залов и четырех санузлов. Два отдельных входа со двора. В данный момент помещение используется как йога-центр. Текущая планировка включает просторный холл, кабинет администратора, серверную, два зала для занятий, кабинет массажа, две раздевалки мужская и женская, три санузла, душевая и гардеробная. Из окон открывается вид на площадь Сенную и колесо обозрения. Помещение возможно использовать как представительский офис компании, медедицинский центр, фитнесс центр, спа-услуги и т.п. Выделено 15 кВт. Высота потолка 2.8 метра."

добавить в Избранное

Ответственный специалист
Бунаков Алексей т. +7 (915)-959-93-80
+7 (915)-959-93-80

Фотографии


Посмотреть все похожие объекты

Похожие объекты

220.0м2подвал услуги агентства оплачивает собственник

Продажа помещения в Нижегородском районе

113 636 руб/м2 (24 999 920 руб.) Продажа помещения  в Нижегородском районе "Продам помещение свободного назначения общей площадью 220

Минина ул., д.18. "Продам помещение свободного назначения общей площадью 220 м2, расположенное на ул.Минина по красной линии, в исторической части Нижнего Новгорода. Шаговая доступность от Кремля и Верхне-Волжской набережной. Рядом пролегают туристические и прогулочные маршруты города. Хорошая транспортная развязка близость остановок общественного транспорта. Обширное коммерческое окружение. Рядом расположены ВУЗы, гостиницы и торговые галереи, два отдельных входа и зона разгрузки. Цокольный этаж, окна высотой 1,3 м над землей. По планировке состоит из 2 залов,2х маленьких кабинетов 4 санузла. Арочные своды между залами, стены из красного старинного кирпича. Вытяжная вентиляция,70 кВт выделенной эл. мощности. Высокие потолки.", N106996


Татьяна Телегина т. +7 (910)-140-42-94

Посмотреть все похожие объекты

<<<Вернуться на главную страницу