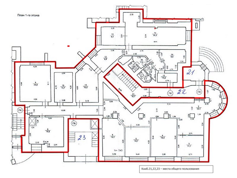
Аренда офиса в Канавинском районе
| Стоимость объекта: | 264 500 руб. |
| Стоимость кв.м.: | 1000 руб. |
| Общая площадь: | 264.5 кв.м. |
| Этаж: | 1 этаж |
Описание
Похожие объекты
Аренда офиса в Канавинском районе
Кузбасская ул, д.1. "Сдаю в аренду офисный блок 178 м2 на 2-м этаже 3-х этажного офисного здания. 5 кабинетов от 25 до 45 м2+ серверная + кухня + рецепция, коридор и балкон 6,7 м2. Офисный ремонт, высота потолка 3,3 м. Здание расположено на Красной линии по ул.Кузбасской. Своя круглосуточная охрана, свободный доступ. Приточно-вытяжная вентиляция, кондиционеры, с/у на этаже, рядом с офисным блоком. В здании есть столовая. Интернет - 4 провайдера. Парковка на территории платная + стихийная вдоль ул. Кузбасская и около заправки. Дополнительно оплачивается электроэнергия, телефон, интернет, с НДС 20%.", N107555
Ирина Касаткина т. +7 (915)-959-93-77
Аренда офиса в Канавинском районе
Советская ул 18. "Аренда помещения свободного назначения 326,2 м2 на ул. Советской. Административное здание 1-я линия домов. Первый этаж 121 м2. цоколь 205,2 м2- высота 3,67 м. Разрешенная мощность 60 Квт; 3 фазы, Центральное ХВС, бойлер. Центральная канализация, кухня, 2 санузла в цоколе, один- на первом этаже. Центральное отопление. Кондиционеры. Телефон и интернет (оптиковолокно, 2 провайдера). Хороший ремонт. Стены кирпич, перекрытия железобетон, капитальный ремонт с заменой деревянных перекрытий на железобетонные сделан в 2009г. Потолок зашит деревом стены кирпичные -окрашены, пол керамогранит (Италия). Охрана пультовая, охранная сигнализация (датчики на дверях, окнах, датчики движения). Пожарная сигнализация, система пожарного оповещения- заведена на пульт охраны. Парковка стихийная. - 500 метров до Московского вокзала, 700 метров до Нижегородской ярмарки, по соседству с БЦ Эсквайр. Коммунальные платежи оплачиваются дополнительно. Договор с ИП, УСН с 5% НДС.", N107545
Биткина Ирина т. +7(915)-959-93-94
Аренда офиса в Канавинском районе
Карла Маркса ул, д.44Б. "Сдаю в аренду офис 172 м2 в новом Бизнес Центре класса В. 4 кабинета с окнами и кондиционерами, несколько с/у, 5 этаж, лифт. Возможно арендовать дополнительные площадаи от 16 до 180 м2. Помещения со свежим ремонтом: напольное покрытие ПВХ плитка, окрашены стены и потолок, разводка электрики по рабочим местам, центральная система вентиляции, центральная система кондиционирования. На втором этаже находится парковка на 80 машино-мест. Третий этаж Конгресс Центр. Внутренняя инфрастуктура: уютное лобби, ресторан общественного питания, гостевая парковка на 42 автомобиля, 4 скоростных лифта и один VIP лифт, 2 провайдера (Ростелеком, Дом-Ру Бизнес), круглосуточная охрана, система видеонаблюдения, система автоматического пожаротушения. Здание расположено рядом с Мещерским озером, в шаговой доступости: станция метро Стрелка (12 минут), остановки общественного транспорта, ТРЦ Седьмое небо (фитнес, общественное питание). Сдается от ИП, без НДС. Дополнительно оплачиваются эксплуатационные расходы - 100 руб/м2 и эл/эн. От собственника, без комиссии !", N107482
Ирина Касаткина т. +7 (915)-959-93-77
Посмотреть все похожие объекты
<<<Вернуться на главную страницу



- 0
























