Аренда непродуктовый магазин в Нижегородском районе
420 000 рублей
| Стоимость объекта: | 420 000 руб. |
| Стоимость кв.м.: | 2100 руб. |
| Общая площадь: | 200.0 кв.м. |
| Этаж: | 1 этаж |
Описание
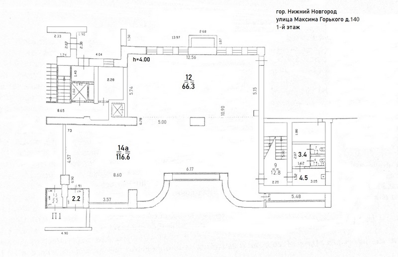
"Аренда помещения. Нижний Новгород. Нижегородский район. Улица Максима Горького. Предлагается в аренду помещение общей площадью 200 кв.м. Расположено по красной линии на 1-ом этаже жилого дома. Отдельный вход. По планировке состоит из однообъемного пространства площадью 182,9 кв.м. и санузла. Высота потолка 4 метра. Большие окна. На помещение выделено 40 кВт. Возможно использовать как магазин, выставочный зал, банк и т.п. Рядом с помещением вход в метро и остановка общественного транспорта.
Шаговая доступность до площади Максима Горького, улицы Большая Покровская. Дополнительно к аренде оплачиваются электрическая энергия по прибору учета, интернет, уборка. Сдается помещение от юридического лица."
Бунаков Алексей т. +7 (915)-959-93-80
+7 (915)-959-93-80
Посмотреть все похожие объекты
Бунаков Алексей т. +7 (915)-959-93-80
Похожие объекты
155.7м21 этаж
услуги агентства оплачивает собственник
Аренда непродуктовый магазин в Нижегородском районе
Белинского ул, д.36. "Аренда помещения. Нижний Новгород. Нижегородский район. Улица Белинского. Помещение общей площадью 155,7 м2. Расположено на 1-ом этаже жилого дома. Красная линия. Отдельный вход. Витринные окна. Возможность размещения вывески. Высота потолков 3 м. Мощность 11кВт. Пожарная и охранная сигнализация. Ставка аренды без НДС. Сдается от ИП. Дополнительно к аренде оплачиваются коммунальные платежи.", N106293
Бунаков Алексей т. +7 (915)-959-93-80
Посмотреть все похожие объекты
<<<Вернуться на главную страницу



- 0























