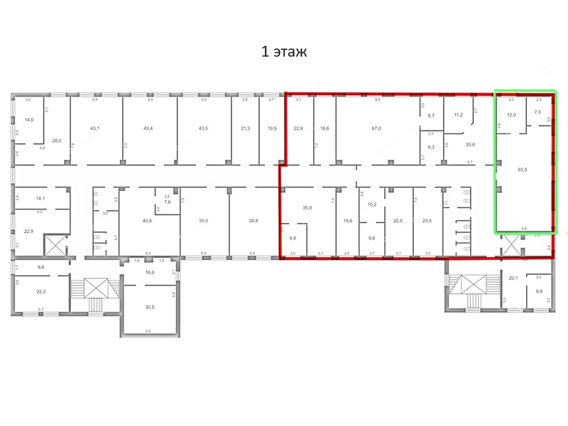
Аренда офиса в Советском районе
| Стоимость объекта: | 83 000 руб. |
| Стоимость кв.м.: | 1000 руб. |
| Общая площадь: | 83.0 кв.м. |
| Этаж: | 1 этаж |
Описание
Похожие объекты
Аренда офиса в Советском районе
Моховая ул. 18. "Сдаю помещение 50 м2 под офис, магазин, ПВЗ на ул. Бекетова. 1 этаж жилого дома, отдельный вход. Однообъемное помещение со своим сан.узлом. Парковка. Дополнительно оплачиваются коммунальные платежи. Есть возможность установить рекламную вывеску. Договор с ИП. УСН. Рядом автобусная и трамвайная остановки.", N107821
Биткина Ирина т. +7(915)-959-93-94
Аренда офиса в Советском районе
Республиканская ул, д.43/1. "Сдаю в аренду офисное нежилое помещение 69 м2 на ул. Полтавская. 1 светлый кабинет с 5-ю окнами (возможно установить перегородки, даются арендные каникулы). Офис расположен на 2-м этаже встроенно-пристроенного помещения к жилому дому. Хороший современный ремонт (на полу плитка), высота потолка 3 м. Санузел на этаже. Стихийная парковка по периметру здания. Коммунальные платежи вошли в стоимость аренды. Дополнительно оплачивается электроэнергия, интернет, уборка внутри. От юр. лица, без НДС. От собственника, без комиссии !", N107769
Ирина Касаткина т. +7 (915)-959-93-77
Аренда офиса в Советском районе
Тверская ул. 20. "Сдаю двух уровневое помещение 71,8 м2 в цоколе с качественным ремонтом под офис, мастерскую в шаговой доступности от Центра. Закрытая территория. Отдельный вход. Состоит из кабинета 14,2 м2 - высота потолка 4,3 м2, кабинета 18,9 м2 -первый уровень, 29,6 м2 - антресоль -высота потолка 1,91м.+ холл 7,8 м2. и сан.узла. В помещении горячее/холодное водоснабжение (с счетчиками на воду), отопление, электроэнергия на 10-15 кВт, принудительная вентиляция. Выделенная стоянка на два автомобиля. Договор с ИП, УСН. Хорошая транспортная развязка.", N107311
Биткина Ирина т. +7(915)-959-93-94
Посмотреть все похожие объекты
<<<Вернуться на главную страницу



- 0











