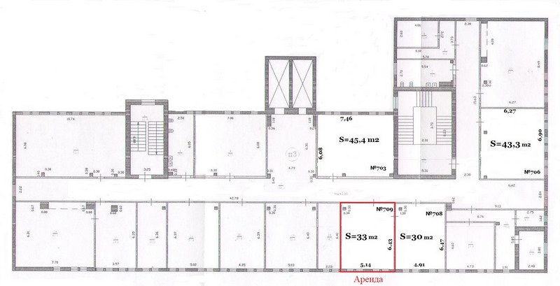
Аренда офиса в Канавинском районе
| Стоимость объекта: | 24 750 руб. |
| Стоимость кв.м.: | 750 руб. |
| Общая площадь: | 33.0 кв.м. |
| Этаж: | 7 этаж |
Описание
Похожие объекты
Аренда офиса в Канавинском районе
Обухова ул, д. 11. "Аренда офиса 25,9 м2 на 1 этаже административного здания. 1 кабинет, свежий ремонт, сан.узел на этаже. Телефонные точки, интернет - 6 провайдеров на выбор. Коммунальные платежи входят в аренду + средства связи, уборка и электроэнергия. Договор с ИП, УСН 5% НДС в цене. Рядом трамвайная и автобусная остановки и метро. Парковка перед зданием.", N107911
Биткина Ирина т. +7(915)-959-93-94
Аренда офиса в Канавинском районе
Обухова ул. 13. "Сдаю в аренду помещение 28 м2 под офис, бьюти услуги на ул. Обухова. Отдельный вход, 1 этаж, 1 кабинет с окном, подсобное помещение, есть мокрая точка и сан. узел. Свежий ремонт. Телефонные точки, интернет- несколько провайдеров на выбор. Охраняемая территория, видеонаблюдение. Парковка. Дополнительно оплачиваются только средства связи и внутренняя уборка. Договор с ИП, УСН с 5% НДС -включен в стоимость. Рядом останова общественного транспорта и метро.", N107301
Биткина Ирина т. +7(915)-959-93-94
Аренда офиса в Канавинском районе
Обухова ул. 15. "Сдам в аренду офис 41 м2 на 1 этаже административного здания. Отдельный вход, 1 кабинет со своим сан.узелом, свежий офисный ремонт. Телефонная точка, интернет - 6 провайдеров на выбор. Охраняемая территория, видеонаблюдение. Парковка. Дополнительно оплачиваются средства связи и внутренняя уборка помещения. Договор с ИП, УСН- 5% НДС включен в стоимость. Рядом остановка общественного транспорта и метро.", N107302
Биткина Ирина т. +7(915)-959-93-94
Посмотреть все похожие объекты
<<<Вернуться на главную страницу



- 0











